

| № | Назва | Площа |
| 01 | Передпокій | 4,7 |
| 02 | Санвузол | 5,8 |
| 03 | Кухня | 12,5 |
| 04 | Вітальня | 25,6 |
| 05 | Кабінет | 7,4 |
| 06 | Гараж | 28,9 |
| 07 | Тераса | 26,6 * 0,3 = 8 |
| 92,79 м2 |

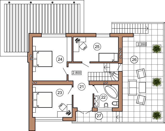
| № | Назва | Площа |
| 21 | Коридор | 10,3 |
| 22 | Санвузол | 5,9 |
| 23 | Дитяча кімната | 13,4 |
| 24 | Спальня | 17,0 |
| 25 | Спальня | 11,7 |
| 26 | Тераса | 30,0 * 0,3 = 10,0 |
| 27 | Лоджія | 4,5 * 0,3 = 1,4 |
| 69,7 м2 |


